Newcastle

Made for moments worth sharing

The Newcastle is a flowing layout that appears modern and is suitable for most needs. Instantly greeted by bright and airy spaces, upstairs hosts all bedrooms while downstairs boasts a generous kitchen, dining and family areas. Select designs offer a covered outdoor area, seamlessly blending indoor and outdoor living.

Find the Newcastle at:
Mt. Atkinson | Orana
Select Size:
24
28
37
41

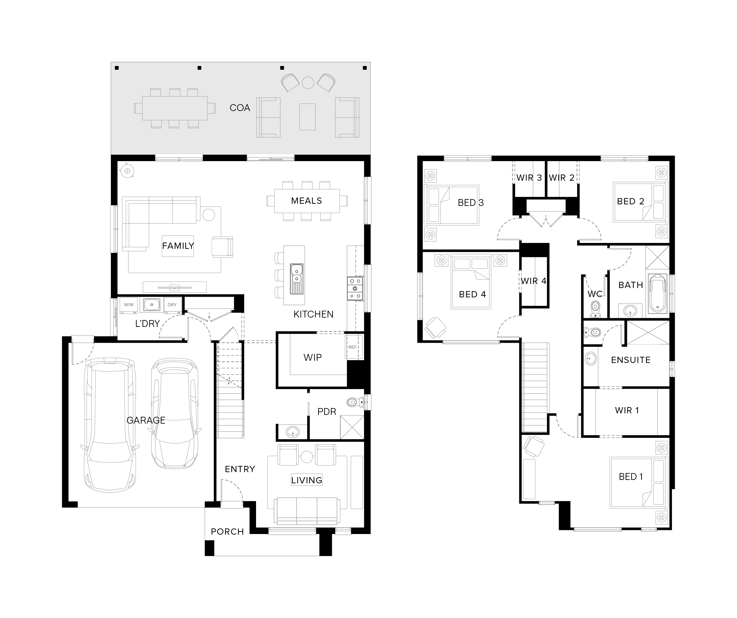
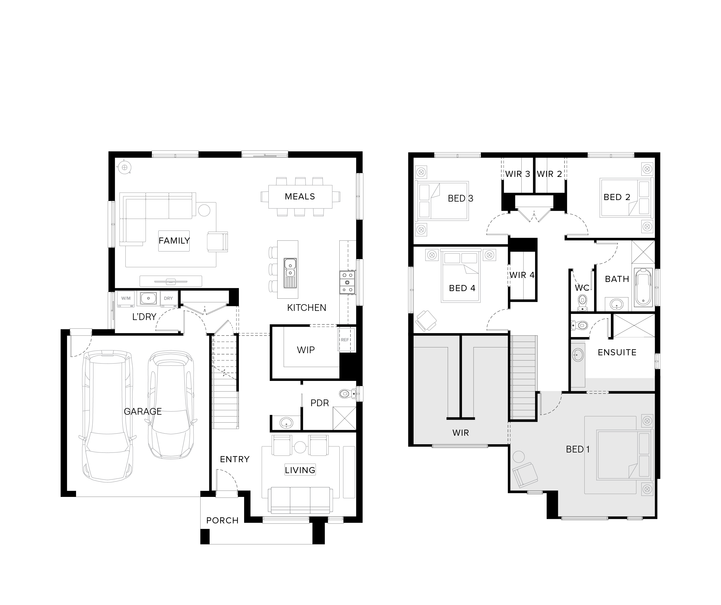
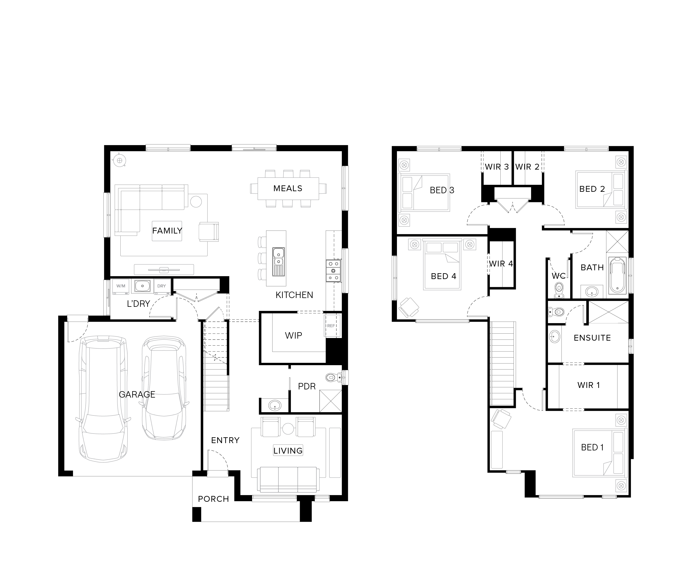
Newcastle 24

Priced from $358,900
4
3
2
2
12.5m
Specifications
Min. Block Width
12.5m
Min. Block Depth
22.0m
Home Area
24.3sq
Home Width
10.6m
Home Depth
14.8m
Bedroom 1
3.1 x 4.4m
Bedroom 2
3.0 x 3.2m
Bedroom 3
3.0 x 3.2m
Bedroom 4
3.1 x 3.2m
Living
3.0 x 3.3m
Family
3.7 x 4.7m
Meals
4.5 x 3.2m
Garage
5.5 x 6.0m
Floor Plan Options
Standard Floor Plan
Added COA
Increased COA
Build over Garage - rumpus

Select Size:
24
28
37
41

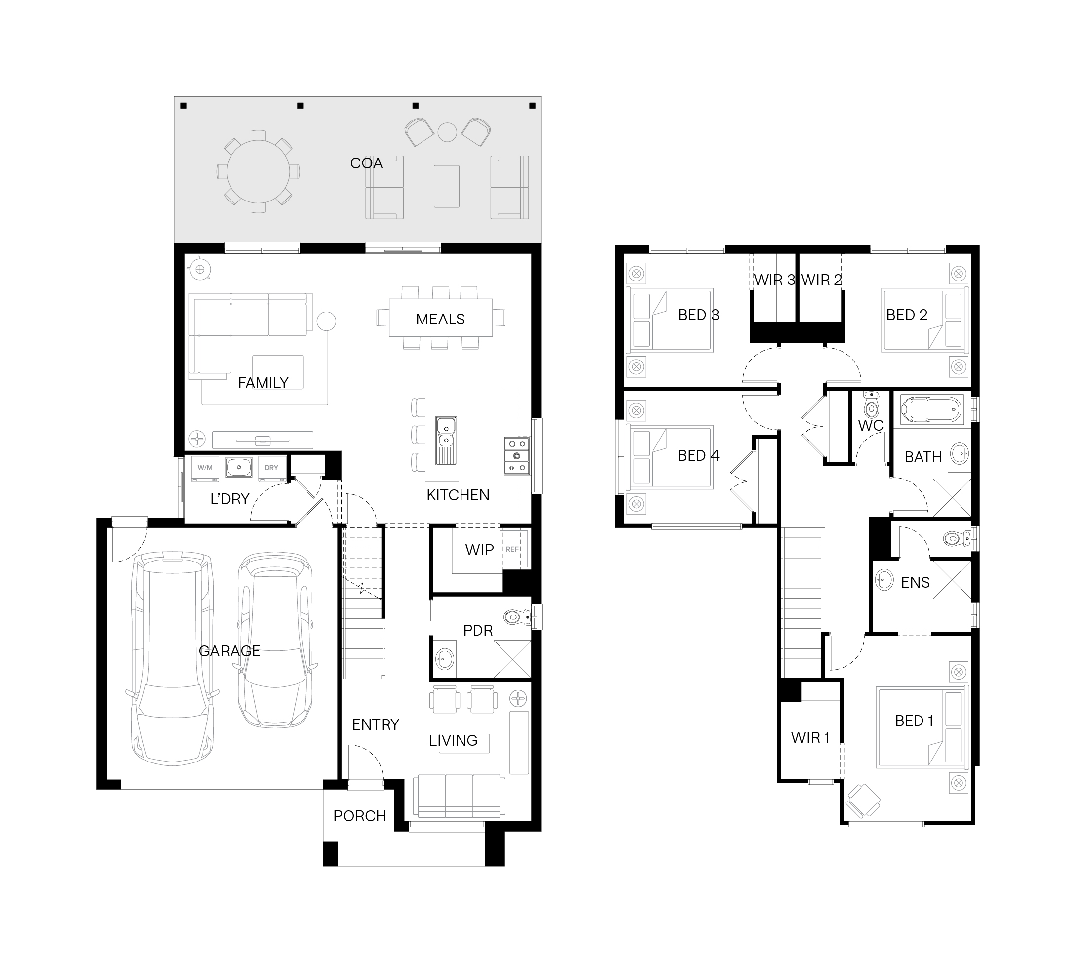
Newcastle 28

Priced from $387,900
4
3
2
2
14.0m
Specifications
Min. Block Width
14.0m
Min. Block Depth
22.0m
Home Area
28.2sq
Home Width
11.7m
Home Depth
15.2m
Bedroom 1
5.6 x 3.4m
Bedroom 2
3.4 x 3.1m
Bedroom 3
3.4 x 3.3m
Bedroom 4
3.7 x 3.3m
Living
4.1 x 3.3m
Family
4.8 x 5.0m
Meals
4.5 x 3.2m
Garage
5.5 x 6.0m
Floor Plan Options
Standard Floor Plan
Added COA
Increased COA
Build over Garage - rumpus
Build over Garage - extended Bed 1, Ensuite & WIR

Select Size:
24
28
37
41

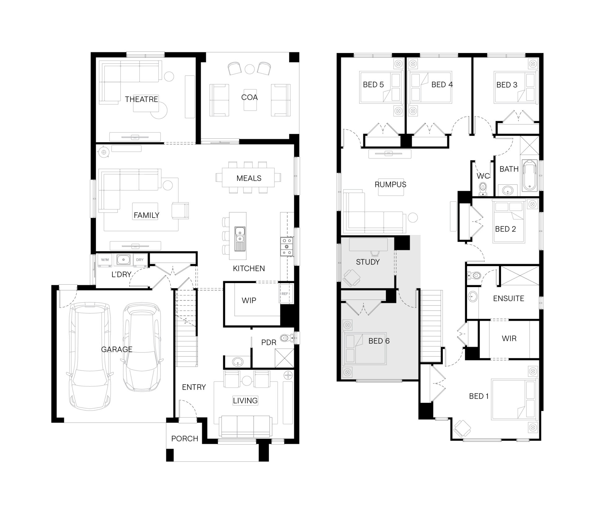
Newcastle 37

Priced from $440,900
5
3
2
4
14.0m
Specifications
Min. Block Width
14.0m
Min. Block Depth
27.0m
Home Area
36.8sq
Home Width
11.7m
Home Depth
19.3m
Bedroom 1
4.5 x 3.7m
Bedroom 2
3.2 x 3.1m
Bedroom 3
3.1 x 3.0m
Bedroom 4
3.1 x 3.6m
Bedroom 5
3.0 x 3.6m
Rumpus
5.5 x 4.1m
Living
4.1 x 3.3m
Theatre
4.7 x 4.0m
Family
4.7 x 4.0m
Study
3.7 x 2.4m
Meals
4.5 x 3.2m
Garage
5.5 x 6.0m
Covered Outdoor Area
4.6 x 4.1m
Floor Plan Options
Standard Floor Plan
Mirrored COA and Theatre
Build over Garage - Bed 6
Build over Garage - extended Bed 1, Ensuite & WIR

Select Size:
24
28
37
41

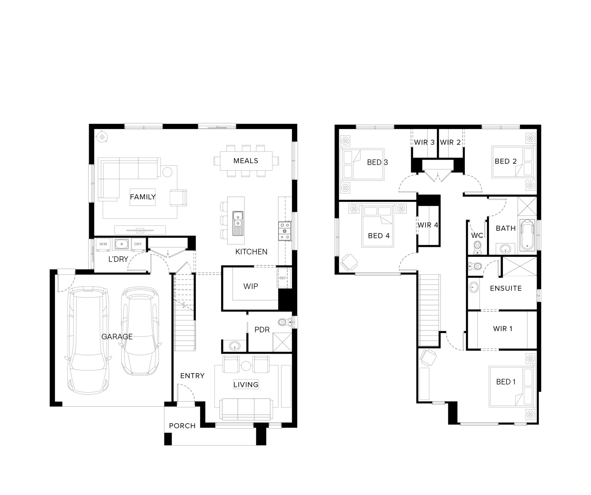
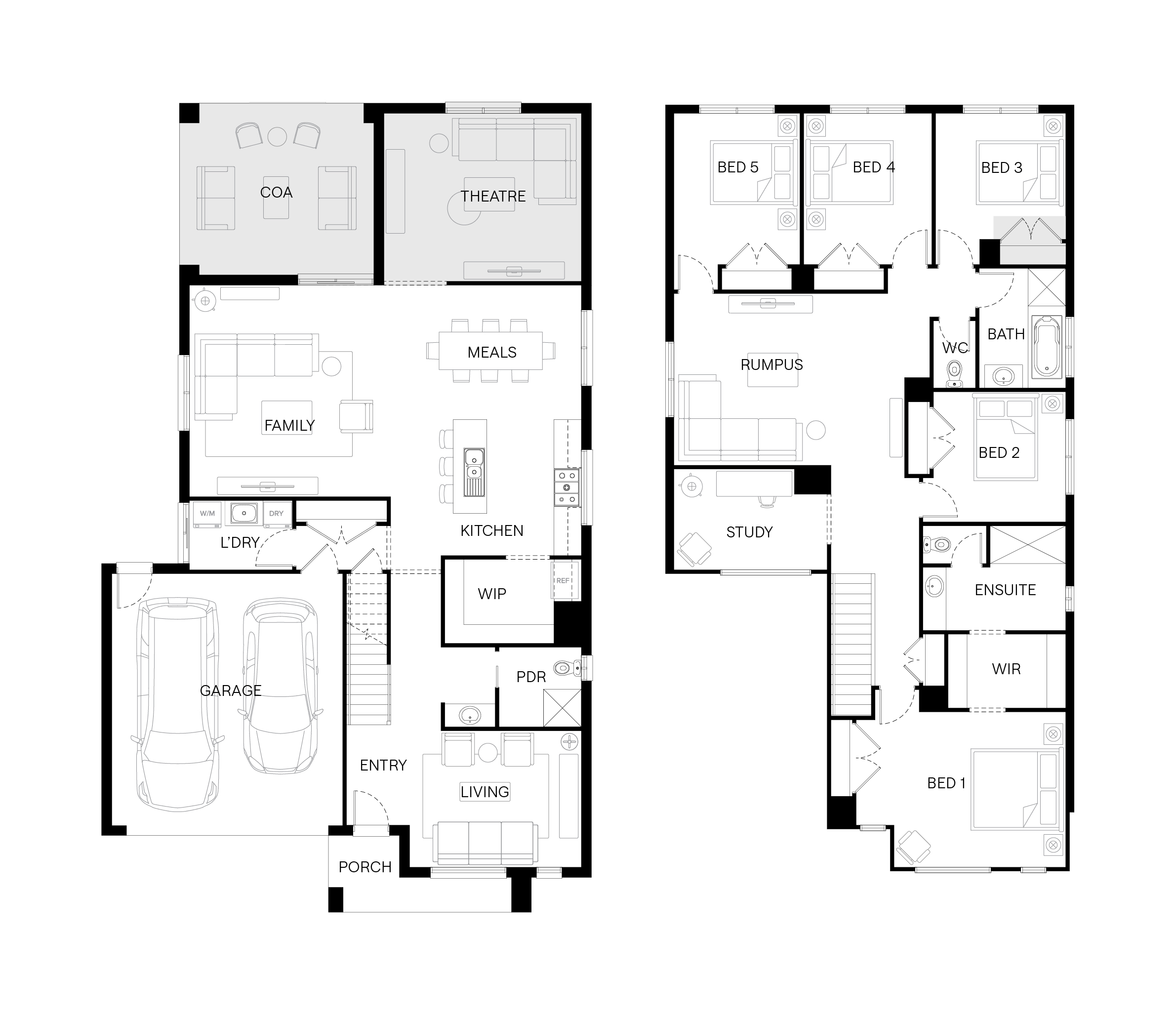
Newcastle 41

Priced from $479,900
6
4
2
3
14.0m
Specifications
Min. Block Width
14.0m
Min. Block Depth
28.0m
Home Area
41.1sq
Home Width
11.7m
Home Depth
20.5m
Bedroom 1
4.5 x 4.3m
Bedroom 2
3.1 x 3.2m
Bedroom 3
3.1 x 3.2m
Bedroom 4
3.1 x 3.2m
Bedroom 5
3.1 x 3.2m
Bedroom 6
3.7 x 3.6m
Rumpus
3.7 x 4.3m
Living
4.1 x 3.8m
Theatre
4.3 x 4.0m
Family
4.8 x 5.0m
Meals
4.5 x 3.2m
Garage
5.5 x 6.0m
Covered Outdoor Area
4.6 x 3.6m
Floor Plan Options
Standard Floor Plan
Mirrored COA and Theatre

Gallery

All
Facades
Apex Facade
Apex Facade
Ashmond Facade
Ashmond Facade
Edge Facade
Edge Facade
Greyson Facade
Greyson Facade
Holbrook Facade
Holbrook Facade
Latrobe Facade
Latrobe Facade
Madison Facade
Madison Facade
Meridian Facade
Meridian Facade
Nixon Facade
Nixon Facade
Patterson Facade
Patterson Facade
Pinnacle Facade
Pinnacle Facade
Ridge Facade
Ridge Facade
Spire Facade
Spire Facade
Summit Facade
Summit Facade

Disclaimer: Images and photographs are for illustrative purposes only, and may include examples of upgrade items.

Gallery

All
Living Areas
Kitchen
Bedrooms
Bathrooms
Outdoor
Facades
Staircase - Mt. Atkinson Display
Staircase - Mt. Atkinson Display
Kitchen - Mt. Atkinson Display
Kitchen - Mt. Atkinson Display
Kitchen - Mt. Atkinson Display
Kitchen - Mt. Atkinson Display
Pantry - Mt. Atkinson Display
Pantry - Mt. Atkinson Display
Family & Kitchen - Mt. Atkinson Display
Family & Kitchen - Mt. Atkinson Display
Family, Meals & Theatre - Mt. Atkinson Display
Family, Meals & Theatre - Mt. Atkinson Display
Living - Mt. Atkinson Display
Living - Mt. Atkinson Display
Theatre - Mt. Atkinson Display
Theatre - Mt. Atkinson Display
Main Bedroom - Mt. Atkinson Display
Main Bedroom - Mt. Atkinson Display
Main Bedroom - Mt. Atkinson Display
Main Bedroom - Mt. Atkinson Display
Ensuite - Mt. Atkinson Display
Ensuite - Mt. Atkinson Display
Bathroom - Mt. Atkinson Display
Bathroom - Mt. Atkinson Display
Laundry - Mt. Atkinson Display
Laundry - Mt. Atkinson Display
Covered Outdoor Area - Mt. Atkinson Display
Covered Outdoor Area - Mt. Atkinson Display
Living - Orana Display
Living - Orana Display
Living - Orana Display
Living - Orana Display
Living - Orana Display
Living - Orana Display
Living - Orana Display
Living - Orana Display
Living - Orana Display
Living - Orana Display
Living - Orana Display
Living - Orana Display
Kitchen - Orana Display
Kitchen - Orana Display
Kitchen - Orana Display
Kitchen - Orana Display
Kitchen - Orana Display
Kitchen - Orana Display
Living - Orana Display
Living - Orana Display
Bedroom - Orana Display
Bedroom - Orana Display
Bathroom - Orana Display
Bathroom - Orana Display
Bathroom - Orana Display
Bathroom - Orana Display
Outdoor - Orana Display
Outdoor - Orana Display
Outdoor - Orana Display
Outdoor - Orana Display
As displayed Pinnacle Facade - Harpley Display
As displayed Pinnacle Facade - Harpley Display
Living - Harpley Display
Living - Harpley Display
Living - Harpley Display
Living - Harpley Display
Living - Harpley Display
Living - Harpley Display
Living - Harpley Display
Living - Harpley Display
Living - Harpley Display
Living - Harpley Display
Living - Harpley Display
Living - Harpley Display
Theatre - Harpley Display
Theatre - Harpley Display
Study - Harpley Display
Study - Harpley Display
Kitchen - Harpley Display
Kitchen - Harpley Display
Kitchen - Harpley Display
Kitchen - Harpley Display
Walk-In-Pantry - Harpley Display
Walk-In-Pantry - Harpley Display
Main Bedroom - Harpley Display
Main Bedroom - Harpley Display
Main Bedroom - Harpley Display
Main Bedroom - Harpley Display
Main Bedroom - Harpley Display
Main Bedroom - Harpley Display
Bedroom - Harpley Display
Bedroom - Harpley Display
Ensuite - Harpley Display
Ensuite - Harpley Display
Bathroom - Harpley Display
Bathroom - Harpley Display
Laundry - Harpley Display
Laundry - Harpley Display
Outdoor - Harpley Display
Outdoor - Harpley Display
Living - Rathdowne Display
Living - Rathdowne Display
Living - Rathdowne Display
Living - Rathdowne Display
Study - Rathdowne Display
Study - Rathdowne Display
Theatre - Rathdowne Display
Theatre - Rathdowne Display
Kitchen - Rathdowne Display
Kitchen - Rathdowne Display
Kitchen & Meals - Rathdowne Display
Kitchen & Meals - Rathdowne Display
Meals - Rathdowne Display
Meals - Rathdowne Display
Kitchen - Rathdowne Display
Kitchen - Rathdowne Display
Main Bedroom - Rathdowne Display
Main Bedroom - Rathdowne Display
Bedroom - Rathdowne Display
Bedroom - Rathdowne Display
Ensuite - Rathdowne Display
Ensuite - Rathdowne Display
Bathroom - Rathdowne Display
Bathroom - Rathdowne Display
Theatre - Rathdowne Display
Theatre - Rathdowne Display
Covered Outdoor Area - Rathdowne Display
Covered Outdoor Area - Rathdowne Display
Main Bedroom - Edgebrook Display
Main Bedroom - Edgebrook Display
Bathroom - Edgebrook Display
Bathroom - Edgebrook Display
Ensuite - Edgebrook Display
Ensuite - Edgebrook Display
Covered Outdoor Area - Edgebrook Display
Covered Outdoor Area - Edgebrook Display

Virtual Tours

Newport 41
On Display

Newport 41

14 Sierra Street
Truganina VIC 3029
Mt. Atkinson
5
2
2
4
Newport 361
On Display

Newport 361

10 Baroda Avenue
Clyde North VIC 3978
Orana
5
2
2
4
Click pin to view location
Display Location
Display Location: Mt. Atkinson
14 Sierra Street
TRUGANINA VIC 3029
Open Times
Monday
11am - 5pm
Tuesday
11am - 5pm
Wednesday
11am - 5pm
Thursday
Closed
Friday
Closed
Saturday
11am - 5pm
Sunday
11am - 5pm
If you would like to book an appointment please submit and enquiry or contact Connie Boicos on 0498 647 913

Enquire about the Newcastle

Make your home journey a reality with Fairhaven Homes.
Book a consultation with one of our New Home Consultants or call us on:

  • This field is for validation purposes and should be left unchanged.

Get Started

  • This field is for validation purposes and should be left unchanged.